string(20) "Pasteurstra%C3%9Fe+6"

Modernized family home in a vibrant trendy neighborhood

10407 Berlin, Upper floor apartment for sale

Modernized family home in a vibrant trendy neighborhood

10407 Berlin, Upper floor apartment for sale

Modernized family home in a vibrant trendy neighborhood - Wohnzimmer Visualisiert Modernized family home in a vibrant trendy neighborhood - Masterbad Modernized family home in a vibrant trendy neighborhood - Flur mit Design-Treppe Modernized family home in a vibrant trendy neighborhood - Zimmer 1.OG Modernized family home in a vibrant trendy neighborhood - Gästebad Modernized family home in a vibrant trendy neighborhood - Küche Modernized family home in a vibrant trendy neighborhood - Küche Modernized family home in a vibrant trendy neighborhood - Zimmer EG Modernized family home in a vibrant trendy neighborhood - Zimmer 1.OG Modernized family home in a vibrant trendy neighborhood - Zimmer 1.OG mit Balkon Modernized family home in a vibrant trendy neighborhood - Grundriss EG Modernized family home in a vibrant trendy neighborhood - Grundriss 1.OG Modernized family home in a vibrant trendy neighborhood - Visu Dielen in natur Modernized family home in a vibrant trendy neighborhood - Fassade Modernized family home in a vibrant trendy neighborhood - Hauseingang Modernized family home in a vibrant trendy neighborhood - Treppenhaus Modernized family home in a vibrant trendy neighborhood - Hobbyraum/Keller Modernized family home in a vibrant trendy neighborhood - Hobbyraum/Keller Modernized family home in a vibrant trendy neighborhood - Hobbyraum/Keller

Object facts

  • Object ID
    TC2230
  • Object types
    Apartment, Upper floor apartment
  • Address
    Pasteurstraße 6
    10407 Berlin
  • Floor
    0
  • Living space ca.
    184 m²
  • Rooms
    6
  • Bathroom
    2
  • Balconies
    1
  • Firing system
    Gas, Central heating
  • Construction year
    1920
  • Condition
    modernized
  • Operating and property management charges
    704 EUR p.M.
  • Purchaser's commission
    2,38 % inkl. MwSt. Sie ist bei notariellem Vertragsabschluss fällig und vom Käufer an die Trendcity GmbH zu zahlen.
  • Purchase price
    1,599,000 EUR

Key features / Equipment

  • ✓ Balcony
  • ✓ Bath
  • ✓ Bathroom with daylight
  • ✓ Built-in kitchen
  • ✓ Floorboards
  • ✓ Guest WC
  • ✓ Open-plan kitchen
  • ✓ Shower
  • ✓ Store room
  • ✓ Tiled floor
  • ✓ Washing/drying room

Property description

Description

Das repräsentative Jugendstil-Mehrfamilienhaus liegt in der Pasteurstraße im charmanten Bötzowkiez und wurde im Jahre 1920 erbaut. Gut erhaltene, historische Stilelemente an der Fassade und im Treppenhaus lassen den historischen Ursprung des Gebäudes erkennen und verleihen ihm seinen besonderen Charakter. Die umfassend sanierte Maisonette-Altbauwohnung erstreckt sich über das Erdgeschoss und das erste Obergeschoss des Vorderhauses.

Key features

Diese einzigartige 6-Zimmer-Maisonettewohnung vereint den typischen Berliner Altbaucharme mit einer klaren, zeitgenössischen Architektursprache. Nach einer umfassenden Neugestaltung und Sanierung präsentiert sich die Wohnung in gehobener Ausstattung mit maßgefertigten Einbauten, konzipiert vom renommierten Berliner Architekturbüro Kirchberger & Wiegner Rohde.

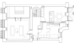
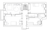
Auf zwei Etagen mit insgesamt 184 m² Wohnfläche bietet die Wohnung ein ideales Umfeld für urbanes, individuelles Wohnen. Sechs gut geschnittene Räume, zwei moderne Badezimmer, ein Balkon, ein begrünter Innenhofbereich sowie ein Souterrain, das sich z.?B. als Hobbyraum nutzen lässt, schaffen viel Raum für Gemeinschaft und Rückzug.

Im Erdgeschoss bilden das Wohnzimmer und ein angrenzender Wohnraum den räumlichen Mittelpunkt. Die maßgefertigte Wohnküche mit bodentiefen Fenstern eröffnet den Blick in den begrünten Innenhof und bietet einen direkten Zugang zu einem privaten Außenbereich. Ein hochwertig ausgestattetes Badezimmer mit Badewanne und separater Dusche sowie ein durchdachter Hauswirtschaftsraum komplettieren das Raumkonzept der unteren Ebene.

Die Treppenanlage zur ersten Etage ist ein echtes Highlight: gebogene Wandpaneele kontrastieren mit einem geradlinigen Stufendesign und werden von effektvoll platzierten Deckenspots inszeniert. Im privaten oberen Bereich der Maisonette stehen vier Zimmer sowie ein weiteres Badezimmer zur Verfügung – ideal als Schlaf-, Kinder-, Gäste- oder Arbeitszimmer.

Zahlreiche Altbau-Elemente wie lichte Deckenhöhen, Stuckdetails, Doppelkastenfenster und Kassettentüren unterstreichen das besondere Ambiente. Ein moderner skandinavischer Akzent entsteht durch die hellgrauen Dielenböden, die harmonisch mit den zweifarbig gespachtelten Wänden kombiniert sind.

Diese Maisonettewohnung verbindet historisches Flair mit modernem Komfort – ein einzigartiges Zuhause in zentraler Berliner Lage.

Einrichtungsbeispiele

Wohnzimmer

Küche

Additional information

Mit Ihrer Anfrage werden Ihre Kontaktdaten an uns übermittelt. Um Ihr Anliegen zu bearbeiten, werden Ihre Daten durch uns erfasst und digital gespeichert.
Weitere Informationen zum Thema Datenschutz finden Sie auf unserer Homepage.

Mit Wirkung zum 23.12.2020 sind die gesetzlichen Neuregelungen zur Aufteilung der Maklercourtage zwischen Eigentümer und Kaufinteressenten ("Parteien") in Kraft getreten. Nach diesen zahlen die Parteien nunmehr grundsätzlich eine Courtage in identischer Höhe von jeweils 3 % des Kaufpreises zuzüglich der gesetzlich geltenden Mehrwertsteuer. Die übrigen Kaufnebenkosten (Grunderwerbssteuer, Notar- und Gerichtskosten) trägt der Käufer.

Weiterhin bestimmen die gesetzlichen Neuregelungen für den Abschluss des Maklervertrages die Textform, sodass es einer Verschriftlichung der Beauftragung des Maklers bedarf. Dieses Erfordernis ist auch bei einer elektronischen Verschriftlichung (z.B. per E-Mail) gewahrt.

Contact information

Energy Pass / energy consumption certificate

  • Energy certificate type
    Consumption pass
  • Date of issue
    18.08.2017
  • Date of expiry
    17.08.2027
  • Construction year
    1920
  • Essential energy source
    Gas
  • Final energy consumption
    115.90 kWh/(m²·a)
  • Energy efficiency class
    D
0 25 50 75 100 125 150 175 200 225 250+ H G F E D C B A A+ H G F E D C B A A+ Total energy consumption 115.90 kWh/(m²·a)

Area

Der Bezirk Prenzlauer Berg gehört mit seiner vielfältigen Kultur- und Gastroszene zu den attraktivsten Lagen Berlins. Die Kombination aus grüner Idylle, extravaganten Einzelhandelsgeschäften sowie einem umfangreichen Angebot an erstklassiger Gastronomie sorgen für das unverwechselbare Flair und die hohe Beliebtheit dieses zentral gelegenen Stadtteil Berlins.
Nach dem Fall der Mauer entwickelte sich der Prenzlauer Berg zu einem der beliebtesten Wohnbezirke Berlins. Große Teile des Stadtteils wurden nach und nach aufwendig saniert, viele Kitas, Schulen und Kultureinrichtungen wurden geschaffen und die Infrastruktur wurde verbessert und vielfältig erweitert. Fußläufig gibt es zahlreiche Lebensmittelgeschäfte, verschiedene Biomärkte und die für Berlin typischen "Spätis" – Läden des täglichen Bedarfs, die Rund-um-die-Uhr geöffnet sind. Daneben bietet der Kiez eine bunte Mischung aus kleinen Boutiquen und charmanten Restaurants, Cafés und Bäckereien, die noch selber backen. Für Nachtschwärmer bieten der Kollwitz- und Helmholtzplatz sowie der Bötzow- und Winskiez zahlreiche Bars und Kneipen. Die Nähe zum S-Bahnring sowie die zahlreichen Bus- und Tramlinien bringen Sie schnell und bequem ins Zentrum Berlins oder beispielsweise auch nach Friedrichshain und Kreuzberg.
Der in nur wenigen Gehminuten erreichbare Volkspark Friedrichshain lädt zum Erholen im Grünen ein, bietet aber auch Sportbegeisterten diverse Möglichkeiten wie Basketball, Fußball, Tennis, Beach-Volleyball und vieles mehr. Für weitere Sportaktivitäten (Badminton, Bowling etc.) ist das SEZ Sport- und Erholungszentrum an der Landsberger Allee per Tram schnell zu erreichen.
Insgesamt überzeugt das Bötzowviertel in Prenzlauer Berg durch seine einzigartige Lage im Herzen Berlins. Hier können Sie am pulsierenden Leben der Stadt teilhaben oder sich in Ihre Oase der Ruhe zurückziehen.

You are currently viewing a placeholder content from Google Maps. To access the actual content, click the button below. Please note that doing so will share data with third-party providers.

More Information